通信用SPD
伝送回線や計装回線を雷サージから保護する通信用SPD
・計装回線
・DC 4mA ~ DC 20 mA 回線
などの保護に使用します
・雷サージカウンタ付きなので、保護効果が見える
・交換推奨表示がSPD劣化前の交換を教えてくれるため、安全性が高い
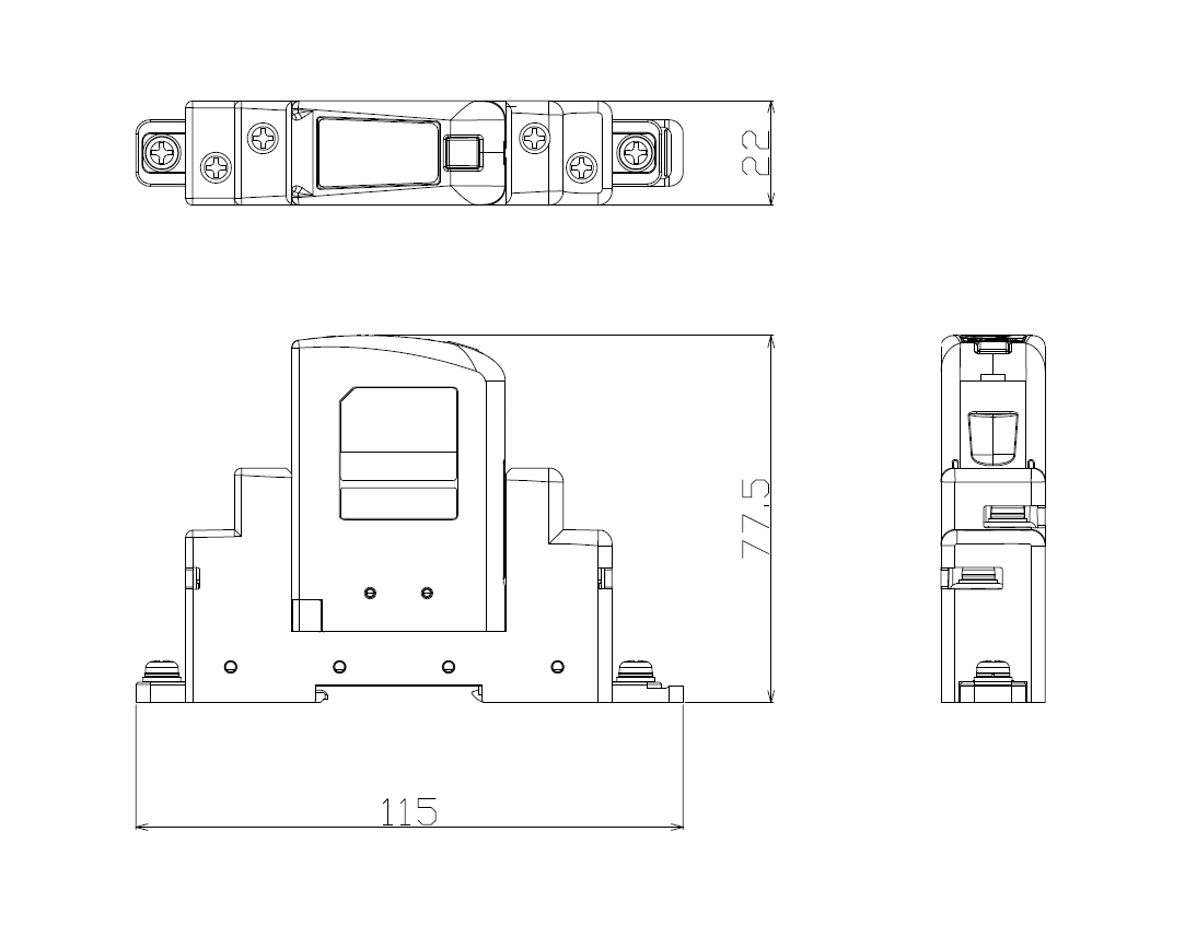
・プラグインタイプだから、メンテナンスしやすく経済的
・接点監視ユニットを使えば、劣化の遠隔監視もできる
・JIS カテゴリC2、カテゴリD1 対応
| キーワード | 雷サージカウント 交換推奨表示 劣化表示 DINレール/ねじ取付け |
|---|---|
| 製品情報 |
製品名:SMH-CLP-H3 24VJK 品目コード:1111042429 |
使用場所: 屋内
使用温度・湿度: -20°C ~ +70°C の範囲、95% 以下(結露のないこと)
保管温度・湿度: -40°C ~ +70°C の範囲、95% 以下(結露のないこと)

| 項目 | 測定条件 | 性能 | 測定箇所 |
| 最大連続使用電圧 UC | - | DC 27 V | - |
| 定格電流 | - | DC 100 mA | - |
| 絶縁抵抗 | DC 27 V | 1 MΩ 以上 | 線間 |
| 直列抵抗 | 1線あたり | 5Ω ± 10% | 入出力間(1線) |
| 挿入損失 | DC ~ 1 MHz | 1.0 dB 以下 | 入出力間 |
| 電圧防護レベル UP | 1.2/50 μs、10 kV | 120 V 以下 | 対地間 |
| インパルスリセット | DC 48 V、260 mA | 30 ms 以下 | 対地間 |
| インパルス耐久性 | 8/20 μs、カテゴリC2 | 10 kA | 対地間 |
| インパルス耐久性 | 10/350 μs、カテゴリD1 | 2.5 kA | 対地間 |
| 交流耐久性 | - | 50Hz、0.5A、1s、5回 | 対地間 |
| 過負荷故障モード | - | モード1 | - |
| 質量 | - | 約 120 g | - |
LED表示によってSPDの状態を確認することができます。
LEDは外部電源駆動の場合は常時点灯します。ボタン電池駆動の場合は操作ボタンを1回押すことで点灯します。
