ノイズフィルタ

【新製品】HEMP(高高度電磁パルス)フィルタ ページ印刷

電磁シールドルームのノイズ対策に

電磁シールドルームの電力ケーブルから侵入するノイズを除去するフィルタです。シールドルームの壁面に設置して使用します。

官公庁、研究機関、データセンター、重要インフラ施設など、HEMP対策が求められる場所の設備保護に最適です。

高いノイズ低減性能

米国軍用規格「MIL-STD-188-125-1:1998」Appendix A/Bに適合し、高水準の性能を実現しています。

キーワード 電磁シールド 電磁パルスフィルタ ノイズフィルタ 
製品情報 製品名:①HF-P224020(2線用)、②HF-P340020(3線用)
品目コード:①1111050149、②1111050150

この製品についてのお問い合わせはこちら

HEMPについて

HEMP(高高度電磁パルス)とは、高度30km~400kmでの爆発に伴って生じる強力な電磁波です。
HEMPの影響範囲は、直径数100km~数1000kmと言われており、この範囲に含まれる電子機器は誤動作や破壊される恐れがあります。

電磁シールドルーム内に設置された電子機器であっても、電力ケーブル等からケーブルの貫通部を通じて、誘起されたパルス状の電流が侵入する恐れがあります。このようなケースでは、電力ケーブルの入力側にHEMPフィルタ(本製品)を設置する対策が有効です。

環境条件

使用場所: 屋内

使用温度・湿度: -20°C ~ +50°C の範囲、90% 以下

保管温度・湿度: -20°C ~ +50°C の範囲、90% 以下

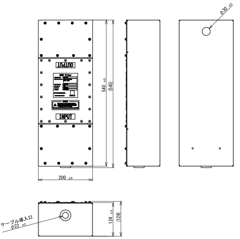
外形寸法、設置イメージ

外形寸法図(単位: mm)

設置イメージ

仕様

形式 HF-P224020 HF-P340020
適用回線
  • 単相2線 120V、240V
  • 単相3線 120/240V
  • 三相3線 400V(Y)
  • 三相3線 230V(Δ)
最大定格

AC250V (L-E間)、AC430V (L-L間)
電源周波数 50/60 Hz
定格電流 AC 20A
シールド性能 MIL-STD-188-125-1:1998 付属書A 適合
フィルタ性能 MIL-STD-188-125-1:1998 付属書B 適合
漏れ電流 AC 250V L-E間 1線あたり 1.7A 以下
電圧降下 定格電流通電時 500mV 以下
コンデンサ放電時間 残留電圧1V以下 20秒 以上
DC耐電圧 MOV取り外し時 DC1200V,10秒間

資料ダウンロード

HEMPフィルタ_仕様書(PDF)

HEMPフィルタ_外観図(PDF)

HEMPフィルタ_取扱説明書(PDF)

この製品についてのお問い合わせはこちら